Задайте питання про цей продукт
- Наявність: В наявності
- Вага: 14,000.00кг
- Розміри: 10,500.00см x 600.00см x 350.00см
Характеристики:
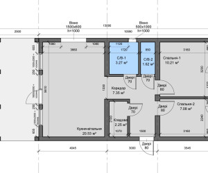
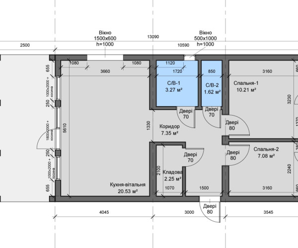
✅️Розмір будинку 10,5х6м, розмір тераси 6х2,5м
✅️Оздоблення всередині фальшбрус пофарбований
✅️Вікна ПВХ, 70мм профіль від WDS, двохстороня ламінація
✅️Оздоблення зовні комбінація фальш бруса і фальц-настила
✅️Теплогіголяція 150мм базальтова вата: стіни, стеля, підлога
✅️На підлозі ламінат
✅️Сантехнічна підготовка (виводи під сантехніку)
✅️Електрика: Повністю розведена система з світильниками, розетками і вимикачами
↗️Всередині стеля під кутом
( верня точка 2.8м, під стінкою висота 2.2м).
Панорамні вікна – чудове рішення для натурального освітлення усередині будинку.
Модель ідеально підходить для облаштування заміського відпочинку.
Щоб не допустити підтікання із землі, втрат тепла та забезпечити природне провітрювання, кожна окрема конструкція має бути встановлена на підготовлений фундамент мінімум на 36 точки спирання.
Висота фундаменту визначається з місцевості. Фундамент може бути виготовлений із будь-якого жорсткого матеріалу. Рівна і правильна поверхня фундаменту полегшує встановлення конструкції і збільшує термін її експлуатації.